목정동 근린생활시설
01 사이트
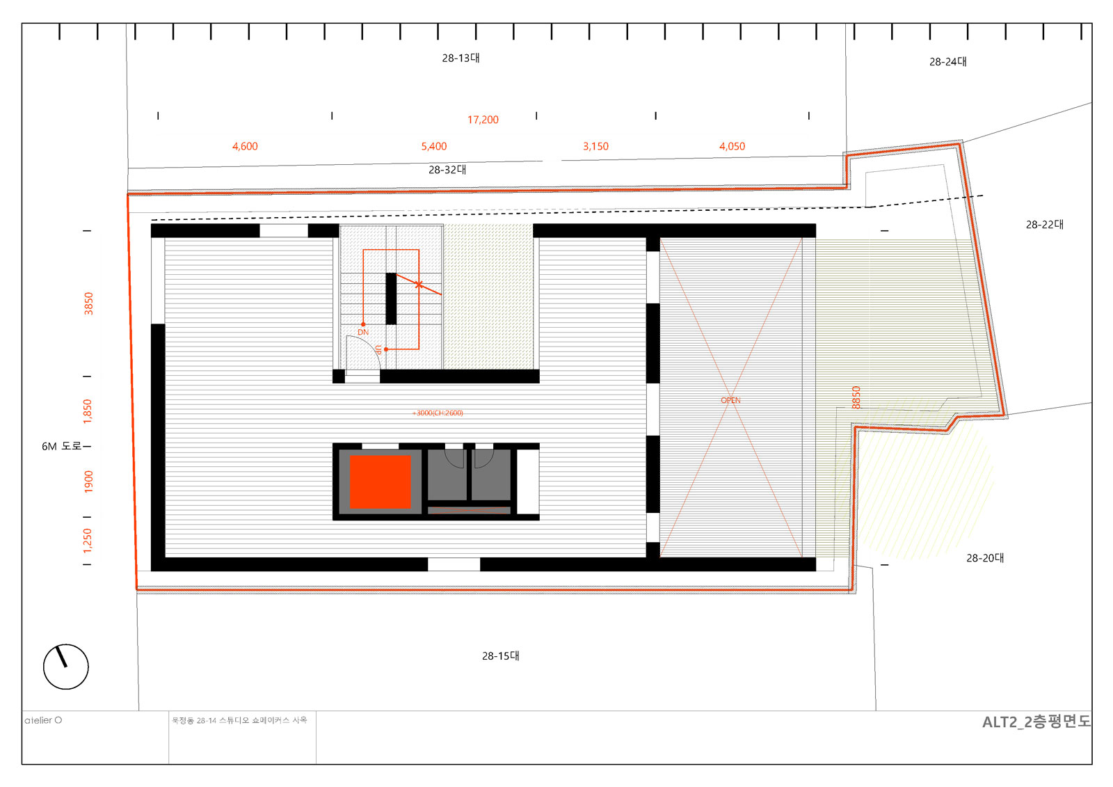
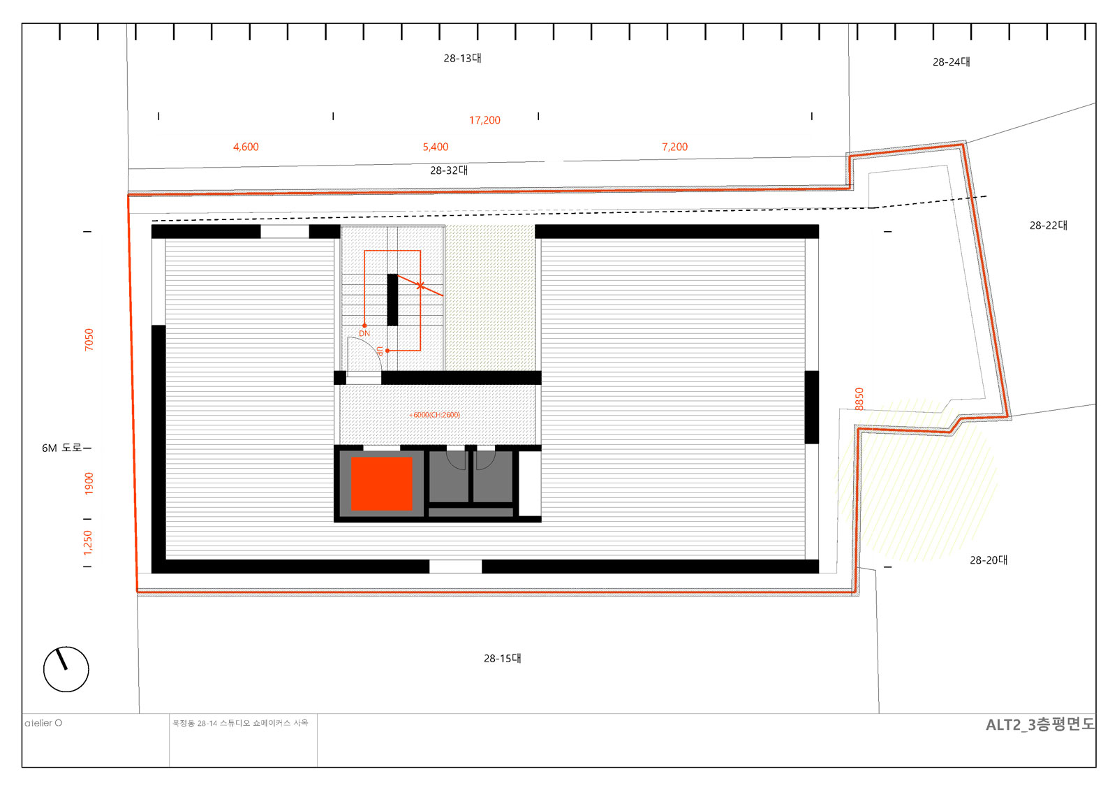
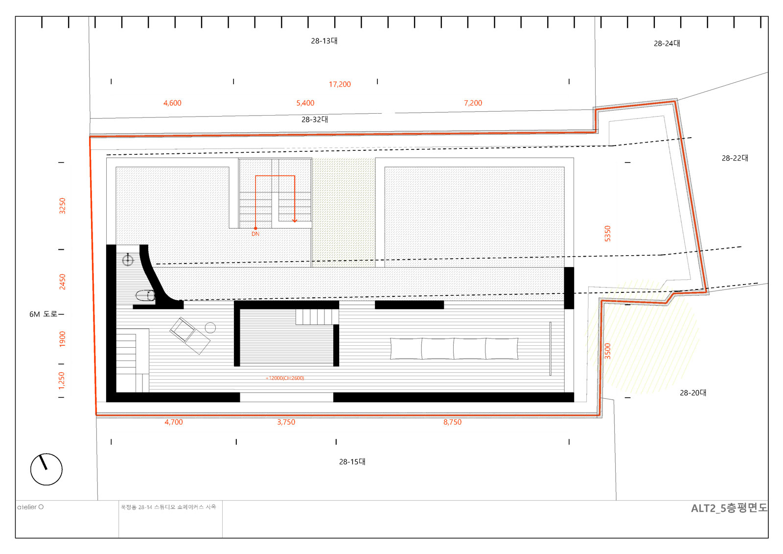
하나, 둘 이곳에 땅이 팔려나가고 있다. 머지않은 미래에 인쇄소 가로의 풍경은 없어질 것이다. 이런 이유로 현재 주변 건물과의 조화는 고려하지 않기로 하였다. 전면 도로의 폭, 스케일만이 우리가 생각할 부분이라고 생각했다.
후면에 접한 다른 대지에 보기 좋게 자리 잡은 잣나무가 있다. 잣나무를 적극적으로 사용해야겠다. 대지의 후정을 만들어 후정이 나무를 품고 건축물이 나무와 후정을 품어 풍요로운 상황을 만들어 볼 수 있겠다.
02 설계의 개념
건축의 외부와 내부에 대한 생각
외부란 무엇인가. 내부란 무엇인가.
우리의 장기인 ‘장’은 외부인가 내부인가.
우리의 ‘입’은 내부인가 외부인가.
우리는 거대한 ‘도너츠’이기도 하다.
경험의 선이 끊기지 않게 외부와 내부의 경계가 모호한 공간을 만들어보자.
전면의 길에서의 건물의 외관은 하얀색의 플라스터인데, 도로의 폭과 유사하게 설계된 복도로 그 재료의 감각을 내부의 중심까지 이어내고 싶었다. 외부 가로에서 인도된 사람들이 아직 내부인 것을 알아채지 못한 채로 복도에 인도되어 외부에 후정을 마주하기를 바랐기 때문이다.
03 길과 면한 입면에 대한 생각
거인이 볼 수 있는 입면과 사람이 볼 수 있는 입면에 대한 다양한 스터디.
길을 통해 유입되는 사람들에게 1~3층에 보이드가 작은 건물처럼 보일 수 있게 디자인 하였다.
하나, 둘 이곳에 땅이 팔려나가고 있다. 머지않은 미래에 인쇄소 가로의 풍경은 없어질 것이다. 이런 이유로 현재 주변 건물과의 조화는 고려하지 않기로 하였다. 전면 도로의 폭, 스케일만이 우리가 생각할 부분이라고 생각했다.
후면에 접한 다른 대지에 보기 좋게 자리 잡은 잣나무가 있다. 잣나무를 적극적으로 사용해야겠다. 대지의 후정을 만들어 후정이 나무를 품고 건축물이 나무와 후정을 품어 풍요로운 상황을 만들어 볼 수 있겠다.
02 설계의 개념
건축의 외부와 내부에 대한 생각
외부란 무엇인가. 내부란 무엇인가.
우리의 장기인 ‘장’은 외부인가 내부인가.
우리의 ‘입’은 내부인가 외부인가.
우리는 거대한 ‘도너츠’이기도 하다.
경험의 선이 끊기지 않게 외부와 내부의 경계가 모호한 공간을 만들어보자.
전면의 길에서의 건물의 외관은 하얀색의 플라스터인데, 도로의 폭과 유사하게 설계된 복도로 그 재료의 감각을 내부의 중심까지 이어내고 싶었다. 외부 가로에서 인도된 사람들이 아직 내부인 것을 알아채지 못한 채로 복도에 인도되어 외부에 후정을 마주하기를 바랐기 때문이다.
03 길과 면한 입면에 대한 생각
거인이 볼 수 있는 입면과 사람이 볼 수 있는 입면에 대한 다양한 스터디.
길을 통해 유입되는 사람들에게 1~3층에 보이드가 작은 건물처럼 보일 수 있게 디자인 하였다.










































